9. 某用电器上的三芯线除黑线外,还有红线和绿线,红线要接在火线上,绿线要接在零线上,不得错接。根据三线插座的接线规则,用电器上的三线插头也有相应的接线要求。如图15 - 9 - 2所示的三线插头中,与三芯线的红线相接的插片是(
B
)。

A.A插片
B.B插片
C.C插片
D.B或C插片
答案:9. B
10. 如图15 - 9 - 3所示为四名同学使用钢笔式测电笔或螺丝刀式测电笔时的握法,其中正确的是(
C
)。

A.①②
B.②③
C.③④
D.②④
答案:10. C
11. 夜间楼道里只是偶尔有人经过,电灯总是亮着会浪费电能。科研人员利用光敏材料制成“光控开关”,天黑时自动闭合,天亮时自动断开;利用声敏材料制成“声控开关”,当有人走动发出声音时自动闭合,无人走动时自动断开。若将这两个开关配合使用,就可以使楼道灯变得“智能化”。下列电路中符合这种“智能化”要求的是(
D
)。

答案:11. D
解析:
解:楼道灯“智能化”要求为:天黑且有声音时灯亮,即光控开关和声控开关需同时闭合灯才亮,两开关应串联。
A选项:光控开关与灯串联后与声控开关并联,声控开关闭合时灯一直亮,不符合要求。
B选项:光控开关和声控开关并联,任一开关闭合灯即亮,不符合要求。
C选项:声控开关与灯串联后与光控开关并联,光控开关闭合时灯一直亮,不符合要求。
D选项:光控开关、声控开关和灯串联,只有两开关同时闭合灯才亮,符合要求。
D
12. 用笔画线代替导线,将图15 - 9 - 4中的三线插座、灯泡及控制灯泡的开关接到家庭电路中。
答案:12. 见图答15-9-1

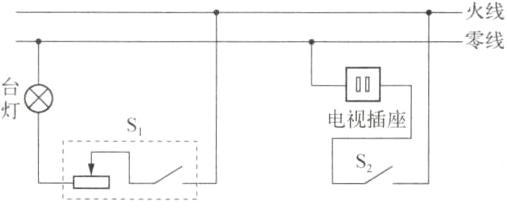
13. 图15 - 9 - 5(a)所示是床头柜上的开关示意图,图15 - 9 - 5(b)所示是其控制的电路,其中$S_1$为旋钮开关,单独控制台灯的通断和亮度;$S_2$为单独控制电视插座的开关。请在图15 - 9 - 5(b)中将电路图连接完整。

答案:13. 见图答15-9-2
